
Schule
Leistung: Erstellung von Brandschutzplänen
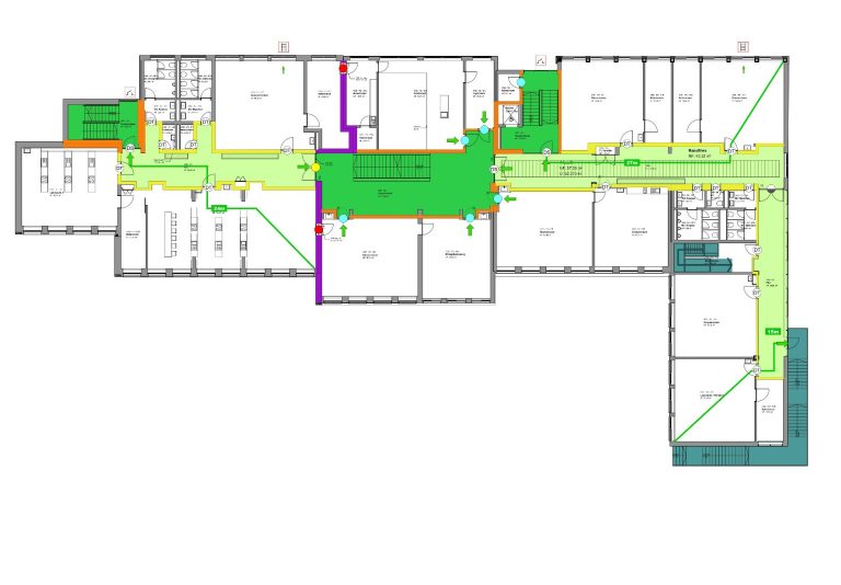
Bauvorhaben: Umnutzung von Lagern zu Aufenthaltsräumen mit baulichem Eingriff.
Ort: Fürstenfeldbruck
Gebäudeklasse: GK4
Besonderheit: Sonderbau
Das Bauvorhaben umfasst die Umnutzung des Dachgeschosses. Zur Sicherstellung des zweiten baulichen Rettungswegs wird eine Fluchtwegführung über die Dachterrasse mit neuen Türöffnungen in den Dachraum zur bestehenden Treppe hergestellt. Zusätzlich werden neue Zugänge zum Treppenraum, sowie funktionale Bypässe geschaffen, sodass bisherige Nebenräume künftig als Aufenthaltsräume genutzt werden können.

