
Gastronomie & Wohnen
Leistung: Erstellung von CAD Zeichnungen
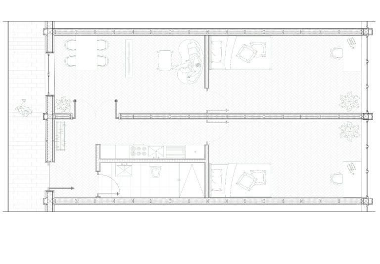
Bauvorhaben: Entwurf eines Mehrparteienhauses mit Gastronomie.
Ort: München
Gebäudeklasse: GK5
Besonderheit: Holzbau, Laubengang
Der Entwurf umfasst die Errichtung eines funktional gemischt genutzten Gebäudeensembles mit Wohn-, Gastronomie- und Arbeitsnutzungen. Die Konstruktion erfolgt in nachhaltiger Holzrahmenbauweise. Die gemeinschaftlich genutzten Flächen, sowie die Gastronomieeinheit sind offen gestaltet. Die Erschließung der Wohneinheiten in den Obergeschossen erfolgt über ein innenliegendes Treppenhaus mit angebundenem Laubengang.

Kontaktanfrage
Kontakt:
Tel: +49 (0)89 48952239
Mob: +49 (0)152 34507042
Mail: info@planung-brandschutz.com
Web: www.planung-brandschutz.com
